XMC 型 脉冲布袋除尘器 是我公司引进德国具有上九十年代技术水平的除尘器进行吸收,并结合中国特点,研制出来的一种新型除尘器。该除尘器是采用高压( 0.5~0.4MPa )大流量脉冲阀逐条滤袋喷吹清灰的技术。能够从大量粉尘(颗粒 £ 5μm ,含量 ³ 70% 以上)的气体中,高浓度( 1300g/m3njc聚彩) 的气体中,把 99.9% 以上的粉尘收集下来。 1997 年底通过省级鉴定,该除尘器在环保行业有很高水平。目前在新的环保标准条件下,不仅广泛用于水泥厂的粉尘治理,而且还广泛用于非金属矿微细粉深加工领域,在电力、化工、冶金、钢铁等行业也有较好的应用前景。
二、构造及工作原理
1 、脉冲布袋除尘器结构
该设备主要有以下部分组成:
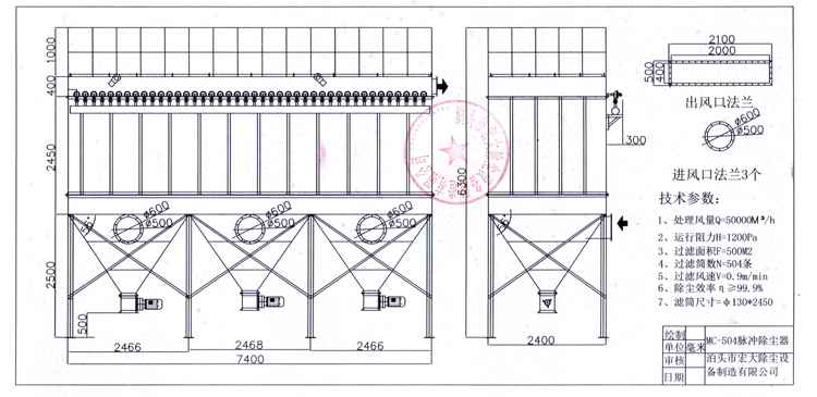
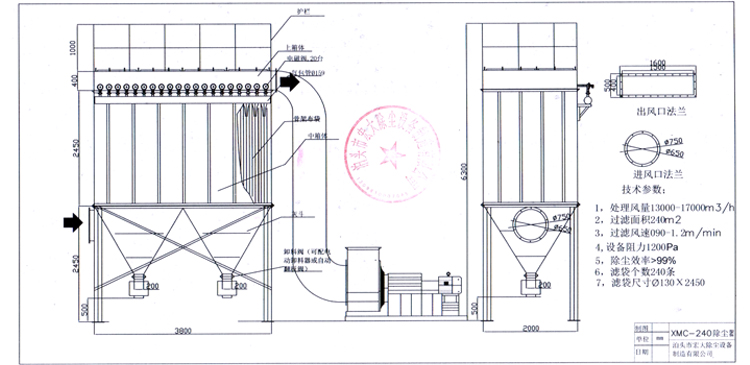
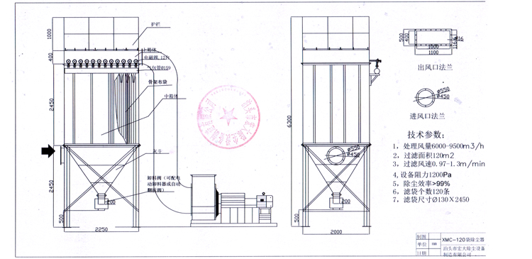
( 1 )箱体:包括袋室、预除尘室、净气室、多孔板、 滤袋 、滤袋 骨架 。箱体设计耐压 9000Pa 。
( 2 )喷吹系统:包括主气管、喷吹管、脉冲阀、控制仪。
( 3 )灰斗及排灰部分有两种形式:一种为灰斗直接与 卸灰阀 连接,另一种为灰斗通过输送设备(如螺旋输送机)与卸灰阀连接。
2 、工作原理
含尘气体进入除尘器已扩大的灰斗进行预收尘,通过导流板均布于各条滤袋之间,粉尘阻留于滤袋外表面,为使设备阻力不_过 1200Pa ,高压气体经 电磁阀 产生脉喷,使气包内压缩空气( 0.5~0.7MPa) ,由喷吹管孔眼喷出(称一次风)通过文氏管诱导数倍于一次风的周围空气(称二次风)进入滤袋在瞬间急剧膨胀,并伴随着气流的反方向作用抖落粉尘,达到清灰的目的。使用微机自动控制装置,根据粉尘随意调整清灰周期和脉喷时间,在收尘器的范围内运行。
三、选型
1 、型号说明
该单机有 60-2 、 60-3 、 60-4 、 60-5 、 60-6 、 70-5 、 70-6 、 70-7 、 70-8 九种规格。具体型号说明如下:
2 、选型参数及选型原则
( 1 )脉冲布袋除尘器选型的主要技术参数为风量、气体温度、含尘浓度与湿度。根据工艺设计的风量、气体温度、含尘浓度的量大数值,按略小于技术性能表中的数值为原则,其相对应的除尘器型号,即为所需要的除尘器型号,采用的滤袋根据入口浓度、气体温度、湿度含量确定。
( 2 )表中的耗气量为工厂集中供气的情况,如单独使用空气机时,实际的耗气量要增大到表中数值的 1.5 倍。
( 3 )压缩空气耗气量栏中,所提出的耗气量为该型号设备的耗气量。