jc聚彩

离线脉冲布袋除尘器|清灰脉冲除尘器|脉冲袋式除尘器-LDML.LDMM.LDMS型系列离线清灰脉冲袋式除尘器-宏大除尘设备

||资讯| 网站地图
宏大除尘设备,除尘器,除尘配件
热门点击: 布袋除尘器|气箱除尘器|脉冲除尘器|旋风除尘器|单机除尘器|行业除尘器|除尘器配件|除尘布袋|
离线脉冲布袋除尘器-清灰脉冲除尘器-脉冲袋式除尘器
LDML.LDMM.LDMS型系列离线清灰脉冲袋式除尘器
离线清灰脉冲袋式除尘器是一种下进风,内滤式、分室反吹风清灰脉冲除尘器,除尘器效率可达99%以上。离线脉冲布袋除尘器维护保养方便,可在除尘系统运行时逐室进行检修、换袋。使用范围较广,可用于冶金、矿山、机械、建材、电力、铸造等行业及工业锅炉的含尘气体的净化。进口含尘质量浓度(标准状态)不大于30g/m3,采用_滤袋进口烟气温度_可达200度。
产地:河北省>泊头市
供应商:泊头市宏大除尘设备制造有限公司
技术咨询热线:
13785759289

LDML.LDMM.LDMS型系列离线清灰脉冲袋式除尘器详细内容介绍information

LDLM 、LDMM、LDMS型系列离线清灰脉冲袋式除尘器  

简介
离线清灰解决了常规脉冲袋式除尘器存在的“粉尘再附与失控”问题,大提高了滤袋清灰效果,从而提高过滤速度,即省清灰能耗和延长滤袋寿命,是我们具有特色的专有技术产品。
本除尘器特别适用于质轻、粒细、粘性粉尘的空气净化。分大、中、小三个系列。

 
离线清灰脉冲袋式除尘器技术性能  
  规格 过滤面积(m2) 滤袋数量(条) 分组数目 处理风量(m3/h) 过滤风速(m/min) 脉冲阀个数(个) 压气量(m3/min) 重量(T) 布置形式
型号
LDML-Ⅰ2160 2160 1440 48 259200 2 48 1.1 81  
LDML-Ⅰ2520 2520 1680 56 302400 2 56 1.3 94
LDML-Ⅰ2880 2880 1920 64 345600 2 64 1.5 107
LDML-Ⅰ3240 3240 2160 72 388000 2 72 1.65 121
LDML-Ⅰ3600 3600 2400 80 432000 2 80 1.82 134
LDML-Ⅰ3960 3960 2640 88 475200 2 88 2.0 148
LDML-Ⅰ4350 4350 2880 96 518400 2 96 2.2 161
LDML-Ⅰ4680 4680 3120 104 561600 2 104 2.4 174
LDML-Ⅰ5060 5060 3360 112 604800 2 112 2.55 188
LDML-Ⅰ5400 5400 3600 120 64800 2 120 2.72 200
LDML-Ⅰ5760 5760 3840 128 691200 2 128 2.9 212
LDML-Ⅱ2880 2880 1440 72 345600 2 72 1.5 102
LDML-Ⅱ3360 3360 1680 84 403200 2 64 1.75 119
LDML-Ⅱ3840 3840 1920 96 460800 2 96 2.00 136
LDML-Ⅱ4320 4320 2160 108 518400 2 108 2.25 152
LDML-Ⅱ4800 4800 2400 120 576000 2 120 2.50 169
LDML-Ⅱ5280 5280 2640 132 633600 2 132 2.75 185
LDML-Ⅱ5760 5760 2880 144 691200 2 144 3.00 202
LDML-Ⅱ6240 6240 3120 156 748800 2 156 3.25 219
LDML-Ⅱ6720 6720 3360 168 806400 2 168 3.50 242
LDML-Ⅱ7200 7200 3600 180 864000 2 180 3.75 252
LDML-Ⅱ7680 7680 3840 192 921600 2 192 4.00 267
LDMM225 225 200 5 33750 2.5 10 0.20 11.4 单列
LDMM270 270 240 6 40500 2.5 12 0.24 13.1
LDMM315 315 280 7 47250 2.5 14 0.28 15
LDMM360 360 320 8 54000 2.5 16 0.32 17.1
LDMM405 405 360 9 60750 2.5 18 0.36 19.2
LDMM450 450 400 10 67500 2.5 20 0.40 21.1
LDMM540 540 480 2×6 81000 2.5 24 0.48 26.4 双列
LDMM630 630 560 2×7 94500 2.5 28 0.56 31.2
LDMM720 720 640 2×8 108000 2.5 32 0.64 34.7
LDMM810 810 720 2×9 121500 2.5 36 0.72 39.5
LDMM900 900 800 2×10 135000 2.5 40 0.80 42.8
LDMS50 50 50 5 7500 2.5 5 0.05 2.5 单列
LDMS60 60 60 6 9000 2.5 6 0.06 2.8
LDMS70 70 70 7 10500 2.5 7 0.07 3.3
LDMS80 80 80 8 12000 2.5 8 0.08 3.7
LDMS90 90 90 9 13500 2.5 9 0.09 4.1
LDMS100 100 100 10 15000 2.5 10 0.1 4.8
LDMS120 120 120 2×6 18000 2.5 12 0.12 5.9 双列
LDMS140 140 140 2×7 21000 2.5 14 0.14 6.9
LDMS160 160 160 2×8 24000 2.5 16 0.16 8.4
LDMS180 180 180 2×9 27000 2.5 18 0.18 8.6
LDMS200 200 200 2×10 30000 2.5 20 0.20 9.7

LDLM 、LDMM、LDMS型系列离线清灰脉冲袋式除尘器 jc聚彩

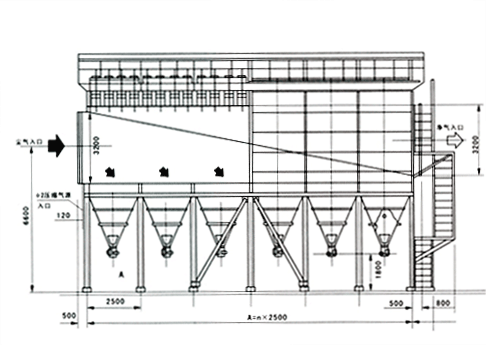
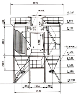
离线清灰脉冲袋式除尘器 离线清灰脉冲袋式除尘器尺寸

主要尺寸:
离线清灰脉冲袋式除尘器尺寸离线清灰脉冲袋式除尘器尺寸

相关产品products list

除尘布袋-布袋除尘器布袋
除尘布袋堪称袋式除尘器的心脏,除尘布袋是袋式除尘器运行过程中的关键部分,通常圆筒型滤袋垂直地悬挂在除尘器中。
DMF-T-62直通式脉冲阀-直通式电磁脉冲阀
宏大生产的DMF-T-62直通式脉冲阀阀其进出口中心为同一直线,其进气口与储气管连接、出气口与喷吹管连接,气流畅通,能提供符合要求的脉冲气流 。DMF-T-62S直通阀的特点:直通式电磁脉冲阀的构造特点是空气进出口中心线在一条直线上,脉冲阀膜片把脉冲阀分为前,直通式脉冲阀后两个气室,接通压缩空气时脉冲阀处于关闭状态,开启动作原理与直角阀相同,只是气流喷射时的流动方向。
DMF-Z-65s电磁脉冲阀-5寸直角型脉冲电磁阀
RMF-Z-65S直角式脉冲阀是2.5寸直角型脉冲电磁阀,进气口和出气口之间的夹角为90度,RMF-Z-65S直角式脉冲阀适合于储气筒和除尘器喷吹管的连接。电压可分为:AC110V/AC220V/DC24V等。
企业简介|工程实例|生产场景|公司业绩|主要客户|联系方式| 网站地图
公司名称:泊头市宏大除尘设备制造有限公司 公司地址:泊头市开发区环城东路南首1号 电话:0317-8392799 8162866 传真:0317-8392977 
手机:18931764475 网址:http://die-youxin.com 
宏大除尘设备 2014(C)版权所有 并对网站所有内容保留解释权  
网站建设:中科四方